
Đừng Nâng Tầng,Đừng lắp đặt máy móc thiết bị nặng và Đừng thay đổi công năng sử dụng Công Trình Nhà Xưởng Khi Chưa Kiểm Định 5 Yếu Tố Kết Cấu Sống Còn Này!!!
Doanh nghiệp của bạn đang trên đà phát triển và nhà xưởng hiện tại đã trở nên chật chội? Bạn đang cân nhắc phương án nâng thêm tầng hoặc lắp đặt dây chuyền máy móc nặng hơn để mở rộng quy mô sản xuất? Đây là một tín hiệu đáng mừng.
Tuy nhiên, trước khi bắt đầu, có một bước đi tối quan trọng mà bất kỳ chủ doanh nghiệp nào cũng không thể bỏ qua: kiểm định đánh giá an toàn kết cấu nhà xưởng.
Việc xem nhẹ bước này không chỉ là một rủi ro về mặt kỹ thuật mà còn có thể dẫn đến những hậu quả pháp lý nghiêm trọng, thậm chí là thảm họa về người và tài sản. Bài viết này sẽ cung cấp một hướng dẫn toàn diện, giúp bạn hiểu rõ tại sao kiểm định là bắt buộc, quy trình thực hiện ra sao và những yếu tố nào quyết định sự an toàn cho toàn bộ dự án nâng cấp của bạn.
Tại Sao Kiểm Định Nhà Xưởng Là Yêu Cầu Bắt Buộc Khi Nâng Cấp?
Kiểm định công trình – Kiểm định hiện trường – Kiểm định an toàn kết cấu chịu lực
Bài Học Đắt Giá từ Thực Tiễn – Vụ Sập Nhà Xưởng tại Bình Dương
Tháng 4 năm 2024, một vụ sập sàn nhà xưởng đang trong quá trình cải tạo tại Bình Dương đã cướp đi sinh mạng của 3 công nhân . Nguyên nhân ban đầu được xác định là do việc thi công cơi nới, đổ bê tông đã được tiến hành mà không có giấy phép xây dựng, không có bản vẽ thiết kế và do một cá nhân không có chứng chỉ hành nghề thực hiện .
Sự việc đau lòng này là một lời cảnh tỉnh đanh thép: bỏ qua các quy trình pháp lý và kỹ thuật an toàn có thể dẫn đến thảm họa. Theo quy định của pháp luật Việt Nam, tổ chức và cá nhân gây ra sự cố công trình không chỉ phải bồi thường thiệt hại mà còn có thể bị truy cứu trách nhiệm hình sự .
Yêu Cầu Pháp Lý: Khi Nào Phải Xin Giấy Phép Cải Tạo?
Theo Luật Xây dựng hiện hành, bạn bắt buộc phải xin Giấy phép sửa chữa, cải tạo khi việc nâng cấp nhà xưởng rơi vào một trong các trường hợp sau :
- Làm thay đổi kết cấu chịu lực: Cả việc nâng tầng và lắp máy móc nặng đều làm tăng tải trọng, ảnh hưởng trực tiếp đến khả năng chịu lực của móng, cột, dầm, sàn hiện hữu.
- Làm thay đổi công năng sử dụng: Chuyển đổi khu vực kho hàng nhẹ thành nơi đặt máy sản xuất nặng.
- Làm ảnh hưởng tới môi trường, an toàn công trình: Các thay đổi có thể tác động đến hệ thống PCCC, lối thoát hiểm, hoặc các công trình lân cận.
Một điểm cần lưu ý trong Luật Xây dựng sửa đổi 2020 là việc miễn giấy phép cho các cải tạo “không làm ảnh hưởng đến an toàn kết cấu chịu lực” . Tuy nhiên, để chứng minh việc nâng cấp là “không ảnh hưởng”, bạn vẫn cần một cơ sở khoa học. Đó chính là Báo cáo kết quả kiểm định đánh giá an toàn kết cấu do một đơn vị có chức năng thực hiện.
Khi phải xin giấy phép, hồ sơ nộp cho cơ quan chức năng (UBND cấp xã/phường hoặc Ban quản lý KCN) bắt buộc phải có báo cáo này .
Quy Trình Kiểm Định Kết Cấu Nhà Xưởng Chuyên Sâu Gồm Những Bước Nào?
Một quy trình kiểm định chuyên nghiệp sẽ “khám sức khỏe” toàn diện cho nhà xưởng của bạn qua các bước sau :
- Bước 1: Thu Thập Hồ Sơ & Khảo Sát Hiện Trạng: Đơn vị kiểm định sẽ thu thập hồ sơ thiết kế, hoàn công, lịch sử sửa chữa và tiến hành khảo sát thực tế để đối chiếu.
- Ghi nhân hiện trạng công trình: Quan sát bằng mắt thường ghi nhận các hư hỏng khuyết tật xuất hiện trên bề mặt công trình như sụt lún nền, nứt tường, nứt bê tông, nghiêng lệch cột tường gây kẹt cửa, cốt thép bị gỉ sét, thấm ố tường trần…
- Sử dụng máy đo bề rộng vết nứt có độ phóng đại 100 lần, để xác định bề rộng vết nứt (nếu có) và đánh giá hư hỏng theo TCVN 9381-2012.
- Lập bản vẽ hiện trạng và quy mô đặc điểm công trình.

- Bước 2: Thí nghiệm, Kiểm Tra Không Phá Hủy (NDT) – “Chẩn Đoán Sức Khỏe”: Sử dụng các thiết bị hiện đại để đánh giá chất lượng vật liệu mà không làm hỏng kết cấu.
- Súng bật nảy: Ước tính nhanh cường độ bê tông bề mặt.

- Máy đo bề rộng vết nứt: Xác định độ rộng vết nứt trên bề mặt công trình.

- Máy dò cốt thép: Xác định vị trí, số lượng và đường kính thép trong bê tông.

- Máy thử độ cứng xác định giới hạn bền vật liệu thép: Xác định giới hạn bền vật liệu thép.

- Bước 3: Thí Nghiệm Phá Hủy (DT) – “Xét Nghiệm Chuyên Sâu” (Nếu cần): Khoan lấy mẫu bê tông tại các vị trí không ảnh hưởng đến kết cấu để đưa về phòng thí nghiệm nén, xác định cường độ chính xác nhất . Thí nghiệm Cabonat hóa đánh mức độ Cacbonat hóa bê tông công trình.

- Bước 4: Lập Mô Hình & Phân Tích Kết Cấu: Dựng mô hình 3D của nhà xưởng trên phần mềm chuyên dụng, nhập các thông số thực tế và tải trọng mới (máy móc, tầng nâng) để tính toán khả năng chịu lực.

- Bước 5: Lập Báo Cáo Kết Quả Kiểm Định Đánh giá an toàn kết cấu: Tổng hợp tất cả dữ liệu, phân tích và đưa ra kết luận cuối cùng về mức độ an toàn của nhà xưởng, đồng thời đề xuất các giải pháp gia cường nếu cần thiết.
5 Yếu Tố Kết Cấu Sống Còn Cần Đánh Giá
Quá trình kiểm định sẽ tập trung vào 5 “mắt xích” quan trọng nhất của kết cấu nhà xưởng:
1. Nền và Móng – Nền Tảng Của Toàn Bộ Công Trình
Đây là bộ phận chịu toàn bộ tải trọng của nhà xưởng và truyền xuống nền đất . Việc tăng tải trọng sẽ tác động trực tiếp lên móng. Nếu móng không đủ khả năng chịu tải, công trình có thể bị lún, nghiêng, lật, thậm chí sụp đổ.
2. Hệ Thống Cột – “Xương Sống” Chịu Lực
Cột là cấu kiện chịu nén và uốn, truyền tải trọng từ dầm, sàn xuống móng . Các dấu hiệu nguy hiểm cần chú ý là vết nứt dọc thân cột, bê tông phồng rộp, hoặc cột bị nghiêng …
3. Dầm và Sàn – Bề Mặt Chịu Tải Trực Tiếp
Đây là nơi chịu trực tiếp tải trọng của máy móc, thiết bị . Các dấu hiệu quá tải rõ rệt nhất là độ võng có thể quan sát bằng mắt thường và các vết nứt ở giữa nhịp (do uốn) hoặc vết nứt xiên gần đầu dầm (do lực cắt).
4. Khung Thép và Liên Kết (Đối với nhà thép tiền chế)
Sự an toàn của nhà xưởng kết cấu thép phụ thuộc rất nhiều vào các liên kết bu lông và mối hàn . Một vài bu lông bị lỏng hoặc một đường hàn bị lỗi có thể là khởi đầu cho sự sụp đổ dây chuyền.
5. Tác Động Của Tải Trọng Mới (Tải trọng gió, máy móc)
Việc nâng tầng không chỉ làm tăng tải trọng thẳng đứng mà còn làm tăng diện tích đón gió, dẫn đến tải trọng ngang tác dụng lên công trình cũng tăng lên đáng kể, ảnh hưởng đến sự ổn định tổng thể .
Các Giải Pháp Gia Cường Kết Cấu Nhà Xưởng Phổ Biến
Nếu kết quả kiểm định cho thấy kết cấu không đủ an toàn, các giải pháp gia cường sau đây có thể được áp dụng:
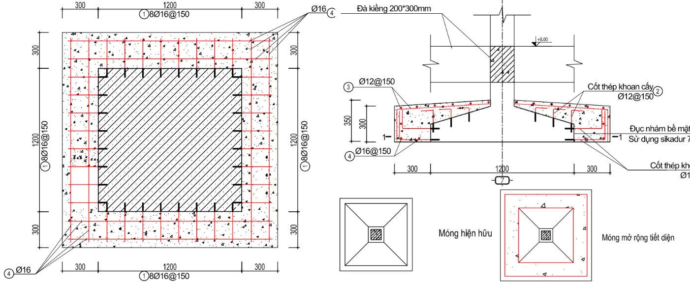
- Gia Cường Móng: Đây là hạng mục phức tạp và tốn kém nhất, có thể bao gồm việc mở rộng tiết diện móng cũ hoặc bổ sung thêm cọc mới để truyền tải trọng xuống lớp đất tốt hơn .

- Gia Cường Cột, Dầm, Sàn Bằng Phương Pháp Truyền Thống:
- Bọc bê tông cốt thép: Tăng tiết diện và khả năng chịu lực bằng cách bọc một lớp bê tông cốt thép mới bên ngoài.

- Ốp thép hình: Sử dụng các thanh thép hình (chữ L, chữ U) ốp vào các mặt của cấu kiện để tăng cường.

- Giải Pháp Hiện Đại: Dán Sợi Carbon (CFRP):
-
- Sử dụng vật liệu composite sợi carbon có cường độ chịu kéo gấp nhiều lần thép nhưng trọng lượng rất nhẹ, dán lên bề mặt kết cấu bằng keo epoxy chuyên dụng .
- Ưu điểm: Thi công nhanh, không làm thay đổi kích thước kết cấu, không gây cháy nổ (do không hàn, cắt), đặc biệt phù hợp cho các nhà xưởng đang hoạt động cần hạn chế gián đoạn sản xuất .

Chi Phí Kiểm Định và Gia Cường Nhà Xưởng Tham Khảo
Chi phí sẽ phụ thuộc vào quy mô, độ phức tạp và tình trạng hiện hữu của nhà xưởng. Dưới đây là bảng đơn giá tham khảo trên thị trường Việt Nam:
| Hạng mục | Đơn vị tính | Đơn giá tham khảo (VNĐ) |
| Kiểm định & Tư vấn | ||
| Kiểm định kết cấu nhà xưởng | m2 | 2,000 – 50,000 |
| Thiết kế gia cường kết cấu | m2 | 3,000 – 80,000 |
Lưu ý: Các đơn giá trên chỉ mang tính chất tham khảo và có thể thay đổi. Doanh nghiệp cần yêu cầu báo giá chính thức để có dự toán chính xác.
Hướng Dẫn Lựa Chọn Công Ty Kiểm Định Kết Cấu Uy Tín
Việc lựa chọn đúng đối tác quyết định sự an toàn và thành công của dự án. Hãy xem xét các tiêu chí sau :
- Năng lực pháp lý: Đơn vị phải có Chứng chỉ năng lực hoạt động xây dựng trong lĩnh vực “Thiết kế xây dựng” do cơ quan có thẩm quyền cấp. Chứng chỉ này đảm bảo báo cáo có giá trị pháp lý và chứng minh bằng các công trình đã kiểm định tương tự.
- Kinh nghiệm và chuyên môn: Ưu tiên các công ty có kinh nghiệm thực hiện các dự án kiểm định, gia cường nhà xưởng tương tự.
- Trang thiết bị: Đảm bảo đơn vị sở hữu đầy đủ các thiết bị chuyên dụng và các thiết bị này phải được hiệu chuẩn định kỳ.
- Sự minh bạch: Quy trình làm việc, tư vấn và báo giá phải rõ ràng, chi tiết.
Câu Hỏi Thường Gặp (FAQ)
1. Kiểm định toàn bộ nhà xưởng mất bao lâu?
Thông thường, một quy trình kiểm định toàn diện mất từ 10 đến 20 ngày làm việc, bao gồm cả khảo sát, thí nghiệm và lập báo cáo .
2. Chi phí kiểm định có bao gồm chi phí sửa chữa không?
Không. Chi phí kiểm định chỉ bao gồm công tác khảo sát, thí nghiệm, phân tích và lập báo cáo. Chi phí sửa chữa, gia cường sẽ được báo giá riêng dựa trên phương án thiết kế sau khi có kết quả kiểm định .
3. Nếu kết quả kiểm định không đạt thì phải làm gì?
Đơn vị kiểm định sẽ đưa ra các khuyến nghị và đề xuất các phương án gia cường, sửa chữa phù hợp. Dựa trên đó, CĐT sẽ làm việc với đơn vị thiết kế để lập bản vẽ gia cường và tiến hành các bước tiếp theo hoặc yêu cầu đơn vị Kiểm định thiết hành lập bản vẽ thiết kế gia cường.
4. Bao lâu thì cần kiểm định nhà xưởng một lần?
Theo quy định, nhà xưởng cần được kiểm định định kỳ. Chu kỳ thông thường là từ 3 đến 5 năm đối với công trình có đông người làm việc, và không quá 05 năm đối với các công trình công nghiệp khác .
Kết Luận
Nâng cấp nhà xưởng là một bước tiến quan trọng, nhưng an toàn phải luôn là ưu tiên hàng đầu. Việc đầu tư vào công tác kiểm định kết cấu không phải là một chi phí phát sinh, mà là một khoản đầu tư thiết yếu để bảo vệ tài sản, tính mạng con người và sự phát triển bền vững của chính doanh nghiệp bạn. Hãy là một chủ đầu tư thông thái, thực hiện đầy đủ các bước theo quy định để đảm bảo dự án nâng cấp của bạn thành công và an toàn tuyệt đối.
SGCI LÀ ĐƠN UY TÍN HÀNG ĐẦU VỀ LĨNH VỰC KIỂM ĐỊNH CHẤT LƯỢNG CÔNG TRÌNH TẠI VIỆT NAM
- Dịch vụ tư vấn chính của SGCI là tư vấn kiểm định chất lượng công trình, tư vấn thiết kế gia cường kết cấu, tư vấn thẩm tra thiết kế và dự toán, tư vấn giám sát thi công xây dựng.
- Song song với dịch vụ tư vấn Kiểm định và thiết kế gia cường kết cấu, SGCI còn cung cấp dịch vụ Thi công sửa chữa, gia cường kết cấu công trình xây dựng.
- Với Hành trang chuyên môn vững vàng và nhiều kinh nghiệm, SGCI luôn thấu hiểu “mong muốn – nguyện vong – tâm tư” của Khách hàng, chúng tôi sẽ luôn đồng hành cùng quý Khách Tạo nên Những công trình an toàn và bền vững.
- SGCI luôn cam kết về trách nhiệm và chất lượng dịch vụ trong từng sản phẩm của mình. Không ngừng phấn đấu phát triển dịch vụ ngày càng lớn mạnh. Chúng tôi phấn đấu để tạo lên thương hiệu, mỗi khi nhắc tới SGCI là nhắc tới đơn vị Tư vấn Kiểm định “UY TÍN – CHẤT LƯỢNG – SÁNG TẠO”.
- SGCI xin cảm ơn Tất cả Quý khách hàng đã quan tâm, đồng hành và sử dụng dịch vụ Tư vấn xây dựng của Chúng tôi và rất mong được hợp tác đồng hành cùng Quí vị trong mọi giai đoạn xây dựng và khai thác vận hành công trình.
- Liên Hệ Nhận Tư Vấn Miễn Phí: Điện thoại/Zalo/Viber/Skype/WhatsApp (0933905111) – ThS.KS-Lê Văn Đông; Email: [email protected] hoặc [email protected]



Có thể bạn quan tâm
Kiểm Định Nhà Xưởng – Gia Cường Kết Cấu – Chi Phí Kiểm Định Nhà Xưởng – Quy Trình Kiểm Định Kết Cấu – Công Ty Kiểm Định Uy Tín
Đừng Nâng Tầng,Đừng lắp đặt máy móc thiết bị nặng và Đừng thay đổi công...
🛡️ Dịch vụ Đánh giá An toàn Hệ thống Điện cho Nhà máy theo Tiêu chuẩn LABS – SGCI
DỊCH VỤ ĐÁNH GIÁ AN TOÀN HỆ THỐNG ĐIỆN CHO NHÀ MÁY THEO TIÊU CHUẨN...
Kiểm định công trình – Kiểm định hiện trường – Kiểm định an toàn kết cấu chịu lực
Kiểm Định Công Trình Tại Hiện Trường: Quy Trình & Công Nghệ Mới Nhất 2025...
Kiểm Định Xác Định Hoạt Tải Sử Dụng Trên Sàn
KIỂM ĐỊNH CHẤT LƯỢNG CÔNG TRÌNH Kiểm Định Hoạt Tải Sàn Xác Định Hoạt Tải...
KIỂM ĐỊNH KẾT CẤU CÔNG TRÌNH – KIỂM ĐỊNH CHẤT LƯỢNG CHUỖI CỬA HÀNG TIỆN LỢI
KIỂM ĐỊNH KẾT CẤU CÔNG TRÌNH KIỂM ĐỊNH CHẤT LƯỢNG CHUỖI CỬA HÀNG TIỆN LỢI...
Thiết Kế Gia Cường Kết Cấu – Thi Công Gia Cường Kết Cấu – Biện Pháp Thi Công Gia Cường Sử Dụng Vật Liệu CFRP
THIẾT KẾ GIA CƯỜNG KẾT CẤU – THI CÔNG GIA CƯỜNG KẾT CẤU ...
Kiểm Định Chất Lượng (An Toàn) Công Trình Xây Dựng – Kiểm Định Công Trình Nhà Xưởng
I. GIỚI THIỆU VỀ CHÚNG TÔI: Công ty Cổ phần Đầu Tư Xây Dựng Kiểm...
KIỂM ĐỊNH NHÀ XƯỞNG – KIỂM ĐỊNH AN TOÀN KẾT CẤU NHÀ XƯỞNG PHỤC VỤ CHƯƠNG TRÌNH LABS VÀ AUDIT NHÀ MÁY
KIỂM ĐỊNH NHÀ XƯỞNG – KIỂM ĐỊNH AN TOÀN KẾT CẤU NHÀ XƯỞNG PHỤC VỤ...